Lot for sale

猪野分譲地残り建売1区画

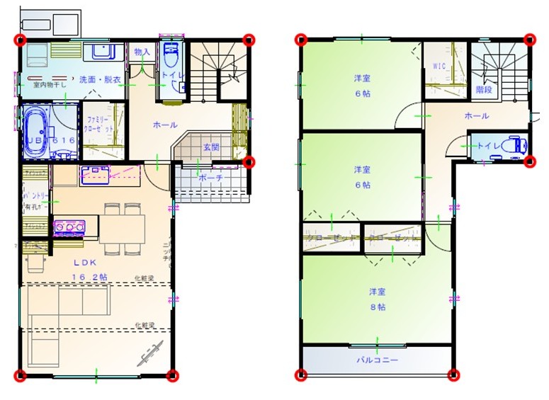
こんなお家が建てられます

土地の詳細

大分市立明治小学校(736m)、大分市立大東中学校(2,644m)

予算例

土地
万円~
建物
万円~
建物合計
3180万円~

建売残り1棟となりました。にじいろのおうち100棟突破記念として値下げキャンペーン中!! 詳しくはお問い合わせください

パース

間取り図

分譲地一覧へ戻る
リアルモデルハウスを見に来ませんか?リアルモデルハウスを見に来ませんか? Line お問い合わせはこちらから
ページトップへ