東原30号【ZEH住宅】
おかげさまで100棟突破☆☆
510万円お値引きして記念セール実施中!!
人気の明野地区の希少物件です!
東原30号 2LDK 3480万円

- 所在地
- 大分市東原
- アクセス
- 高城駅徒歩13分
- 土地の
広さ
- 159.27㎡ (48.18坪)
- 建物の
大きさ
- 66.66㎡ (20.16坪)
コンセプト
にじいろのおうちのこだわり

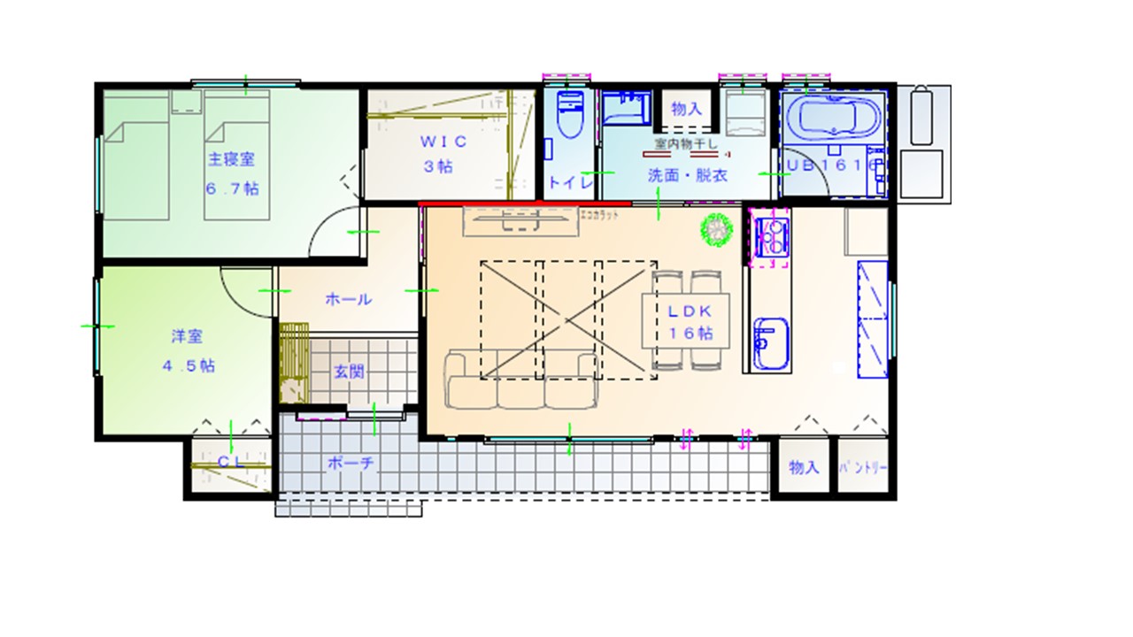
間取り
環 境
近隣施設
- グリーンコープ生協おおいた高城店まで802m
- イオン高城店まで1,097m
- 医療法人同仁会大分下郡病院まで2,291m
- 大分萩原郵便局まで1,401m
学校区
- 認定こども園カトリック明野幼稚園まで1,400m
- 大分市立明野北小学校まで1,365m
- 大分市立城東中学校まで548m
- 大分市立明野中学校まで2,325m
販売情報一覧へ戻る